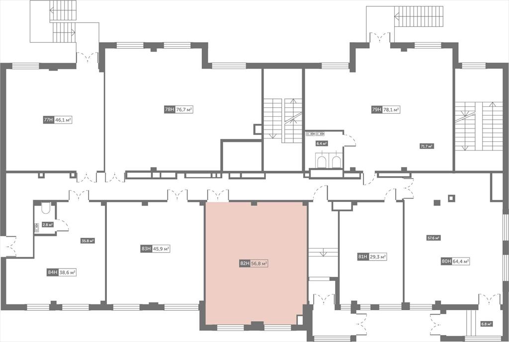
площадью 56,80 м2, по цене 11928020 по адресу Фермское шоссе - 12 литера А

Цена 11 928 020 р.
Район Приморский
Адрес Фермское шоссе, 12 литера А
Площадь помещения 56,8 м2
Продается офисное помещение в сданном жилом комплексе Шведская Крона. Прямая продажа от застройщика. ЖК «Шведская крона» расположен в Приморском районе Санкт-Петербурга в престижной локации возле Удельного парка. Дома сданы и заселены, что обеспечивает стабильный пешеходный трафик и востребованность услуг малого бизнеса среди жителей ЖК.
Объявление № 23294999
Дата подачи:
6 октября 2025 г. 5:16
Дата обновления:
6 октября 2025 г. 4:00
Просмотров 19 Хотите продать быстрее?

Продавец
Отдел продаж
Показать номер телефона
Пожаловаться
Комментарии:
Добавить